BB Centrum Filadelfie
Želetavská 1525/1 – Prague 4
| Rent: | 18,50 - 20 EUR per sqm/month |
|---|---|
| Service charges: | 153 CZK per sqm/month |
| Parking: | 163 EUR per place/month |
| Deposit: | 3 monthly rents |
| Minimum rental period: | 60 months |
(Prices are without VAT)
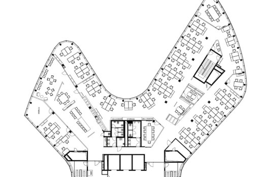
The FILADELFIE building, designed by the DaM, s. r. o. architectural office, with its 17 floors and attractive design, forms the dominant feature of the entire BB Centrum complex. The building is located on Želetavská Street and was completed in autumn 2010. The total leasable area of the building is 34,000 m2. There are 940 parking spaces available for tenants and the public in the underground. The building includes a roof terrace, a canteen and a commercial arcade with a diverse range of shops and services (Albert supermarket, dm drugstore, dry cleaners, jewellery shop, beauty and nail studio, florist, restaurant and wine shop). The FILADELFIE building has excellent transport accessibility: a shuttle bus stop - the FILADELFIE stop - is directly in front of the building (one stop from the C - Budějovická metro station), other public transport lines are 100 m away, direct connection from the building to the Prague ring road and the D1 motorway.
Free spaces
Contact

























