Corso Karlín
Křižíkova 237/36a – Prague 8
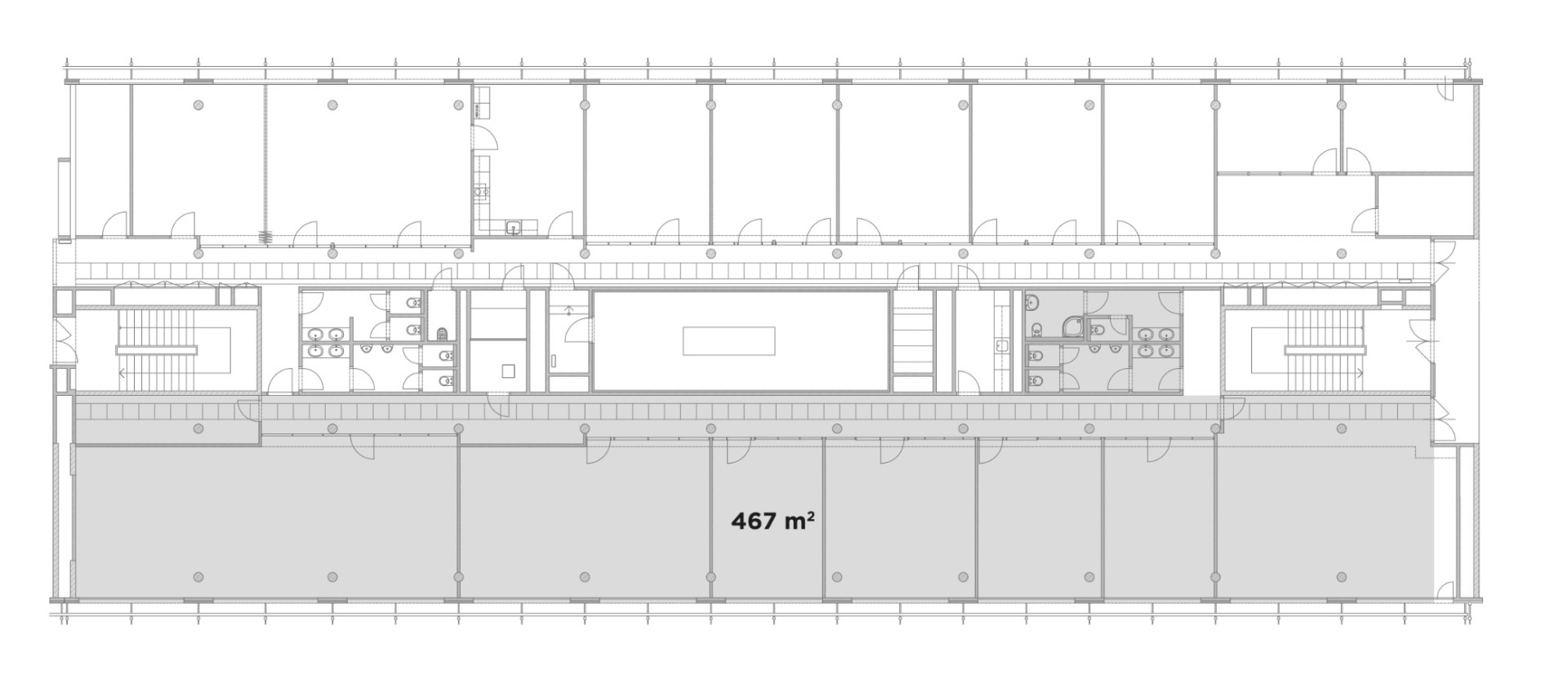
| Rent: | 17 - 17,50 EUR per sqm/month |
|---|---|
| Service charges: | 170 CZK per sqm/month |
| Parking: | 140 EUR per place/month |
| Deposit: | 3 monthly rents |
| Minimum rental period: | 36 months |
(Prices are without VAT)
The CORSO Karlín office building is located in a quiet location in the centre of Prague on Křižíkova Street in the Prague 8 - Karlín district. It provides its tenants with all the comfort for a great working environment. It is located in a lucrative area of Karlín, where you can perfectly combine work and personal life. A huge advantage of the location of Prague Karlín is excellent accessibility to all types of transport - by car, public transport or even by bike thanks to the connection of Karlín to the network of Prague cycle paths. In close proximity to the building there is a metro station B Křižíkova and a tram stop of the same name. The bus station and Florenc metro station can be reached on foot in 12 minutes. There is one more thing that stands out in the vicinity of the building - perfect civic amenities. Karlín is a modern, vibrant district with a wide range of restaurants, cafés, shops and cultural centres.
Free spaces
Contact












































