Agora Flora
Chrudimská 1418/2 – Prague 3
| Rent: | Price on request - 350 CZK per sqm/month |
|---|---|
| Service charges: | 145 CZK per sqm/month |
(Prices are without VAT)
The Agora Flora building was created by revitalizing the former Duda electrical engineering plant in Královské Vinohrady. The AGORA FLORA project involved the construction of 54 residential units and 12,260 m² of non-residential space, of which 7,800 m² is used for administrative purposes, retail, and relaxation, with the remaining space used for 163 parking spaces in an underground car park. The complex benefits from an exclusive location that is also easily accessible by Prague public transport and by car. The Flora metro station, tram and bus stops are in the immediate vicinity of the building.
Cooling/Air conditioning
Elevator
Parking
Disposition changes
Raised floor
Opening windows
Optical internet connection
Security 24/7
Energy class: G - průkaz nedodán
Free spaces
Type
Download offer
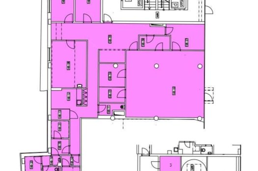
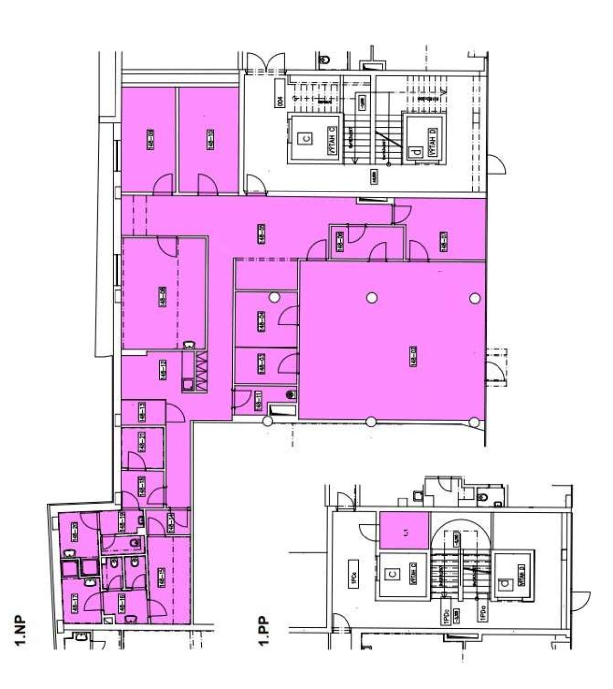
Floor plan
Size
Floor
Price per sqm
Available
Contact












