Factory Office Center
Nádražní 32/17a – Praha 5
Nájemné: | od 17,90 EUR za m2/měsíc |
---|---|
Servisní poplatky: | 140 CZK za m2/měsíc |
Parking: | 130 EUR za místo/měsíc |
Deposit: | 3 měsíční nájmy |
Doba nájmu: | 36 - 60 měsíců |
(Ceny jsou uvedeny bez DPH)
Budova Factory Office Center o celkové rozloze 9.701 m2 představuje kombinaci moderních kancelářských prostor a respektu k tradiční industriální zástavbě Smíchova. Skládá se ze dvou podzemních a sedmi nadzemních podlaží. Komplex se nachází přímo proti Smíchovskému nádraží a navazuje na dnes již plně rozvinutou administrativní oblast Anděla. FOC symbolizuje poslední etapu v přeměně tohoto bývalého industriálního areálu na atraktivní administrativní celek, nacházející se v centru Prahy. Velký důraz byl kladen na flexibilní a efektivní uspořádání prostor dle požadavků nájemce s použitím nejnovějších technologií. Výhodou je také půdorysné uspořádání, které zajišťuje maximální světlost prostor. Obchodně administrativní budova FOC se nachází ve velmi atraktivní lokalitě Prahy 5 – Smíchov. Tato část Prahy je jednou z nevyhledávanějších a nejlépe dostupných lokalit nejenom díky napojení na dálnici D1 na Brno a D5 směřující na Plzeň, ale také výborně zavedenou infrastrukturou a bohatou občanskou vybaveností v podobě nákupních center a všech nezbytných institucí. Je zde také řada možností městské hromadné a příměstské dopravy, díky čemuž představuje významný dopravní uzel, přes který denně cestuje více než 90.000 lidí. Budova je přímo nad vstupem do metra „B“ Smíchovské nádraží. Před budovou se nacházejí zastávky tramvají (6, 12, 14 a 20), vlaková zastávka Praha – Smíchovské nádraží, zastávka autobusů PID ze směru Barrandov, Zbraslav a Jíloviště. Velmi dobré spojení na letiště Václava Havla. Podzemní parkoviště pro 92 vozů přímo v budově.
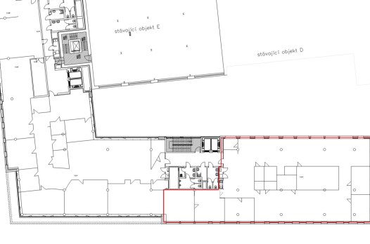
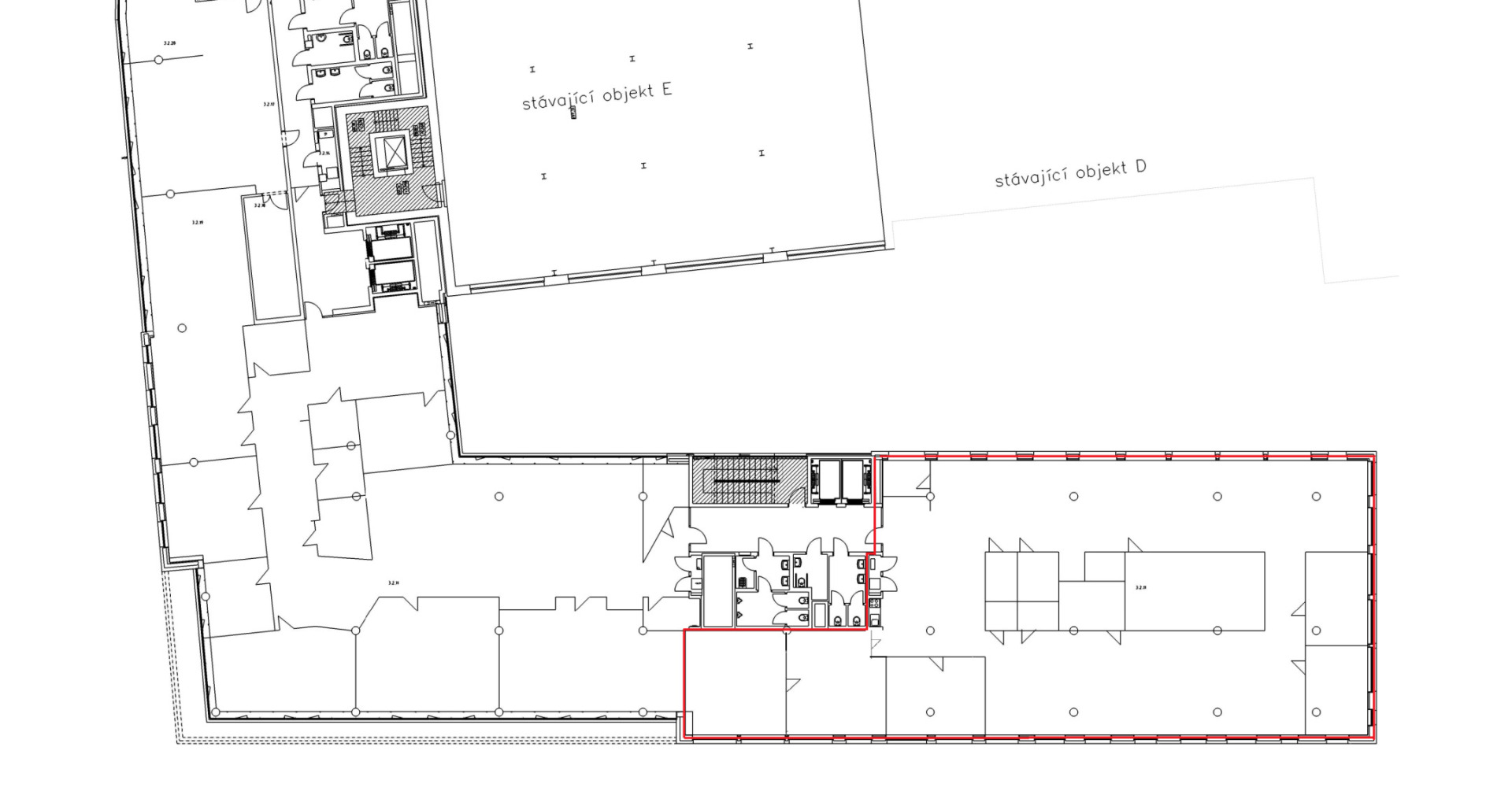
Volné prostory
Kontakt
