Nile House
Karolinská 654/2 – Praha 8
| Nájemné: | od 19,50 EUR za m2/měsíc |
|---|---|
| Servisní poplatky: | 112 CZK za m2/měsíc |
| Parking: | 160 EUR za místo/měsíc |
| Terasa: | 4 EUR za m2/měsíc |
| Deposit: | 3 měsíční nájmy |
| Minimální doba nájmu: | 60 měsíců |
(Ceny jsou uvedeny bez DPH)
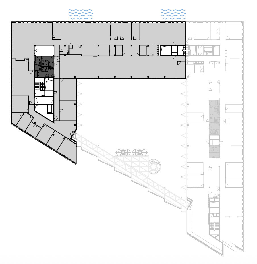
Nile House svým nájemcům nabízí až 19 000 m2 kancelářské plochy a 1670 m2 obchodních ploch. Nile House se stal vůbec první budovou v Česku, která dosáhla nejvyšší možné certifikace LEED Platinum. V roce svého dokončení byl dokonce na čtvrtém místě celosvětového žebříčku. Mezi zajímavé prvky budovy patří prosklené výtahy, točitá schodiště mezi patry, průchozí lávky lemující obvod budovy a spousta přirozeného světla a zeleně. V budově se podařilo skloubit přírodní elementy s kvalitními materiály a technologiemi. Výsledkem jsou minimální tepelné ztráty a vysoká akumulace tepla. Rohanský ostrov má naprosto unikátní polohu se skvělou dopravní dostupností. Nachází se tři minuty chůze na tramvajovou zastávku Karlínské náměstí, odkud je to asi minutu tramvají na zastávku metra B Křižíkova a dvě minuty na dopravní uzel Florenc, kde se protínají linky metra B a C. Na Florenci se také nachází mezinárodní autobusový terminál. Okolí budovy poskytuje plnou občanskou vybavenost s mnoha restauracemi, kavárnami a hotely. Pro sportovce je k dispozici cyklostezka, která se nachází přímo za budovou a lze se jí snadno dostat až do Stromovky. Pro nájemce je k dispozici až 218 parkovacích stání v podzemních garážích.
Volné prostory
Kontakt














