Blox
Evropská 2758/11 – Praha 6
| Nájemné: | od 18,50 EUR za m2/měsíc |
|---|---|
| Servisní poplatky: | 120 CZK za m2/měsíc |
| Parking: | 145 EUR za místo/měsíc |
| Deposit: | 3 měsíční nájmy |
| Minimální doba nájmu: | 60 měsíců |
(Ceny jsou uvedeny bez DPH)
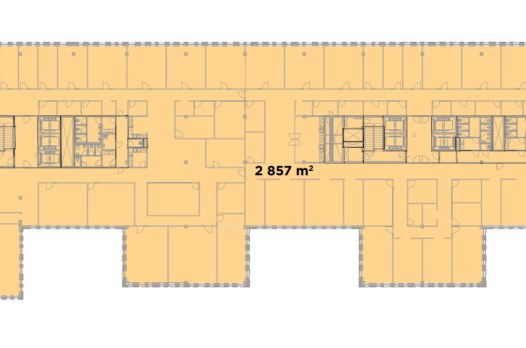
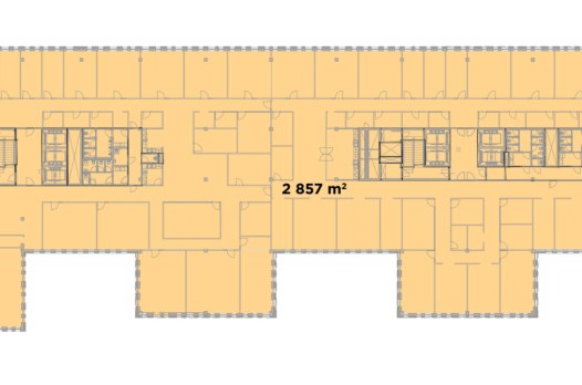
Blox je unikátní administrativní objekt navržený ateliérem DAM architekti, který byl v roce 2015 postaven jako kancelářská budova odpovídající nejmodernějším technickým požadavkům. Architektura budovy je specifická jednoduchými prvky, kterými zapadá do základního urbanistického konceptu pražských Dejvic. I přes svou jednoduchost je ale stavba nepřehlédnutelná a výrazně na sebe upozorňuje svým jedinečným moderním vzezřením připomínajícím čárový kód. Objekt je rozdělen do dvou křídel a má 8 nadzemních podlaží, které dohromady tvoří pronajímatelnou plochu o velikosti 21 000 m2. Veškerá občanská vybavenost se nachází v blízkém okolí budovy. Projekt se nachází blízko centra Prahy a nedaleko mezinárodního letiště Václava Havla. Přímý vstup do stanice metra Dejvická (trasa A) zaručuje snadnou dostupnost do centra metropole.
Volné prostory
Kontakt














































































